Woningen Laan van de Mensenrechten
Den Haag
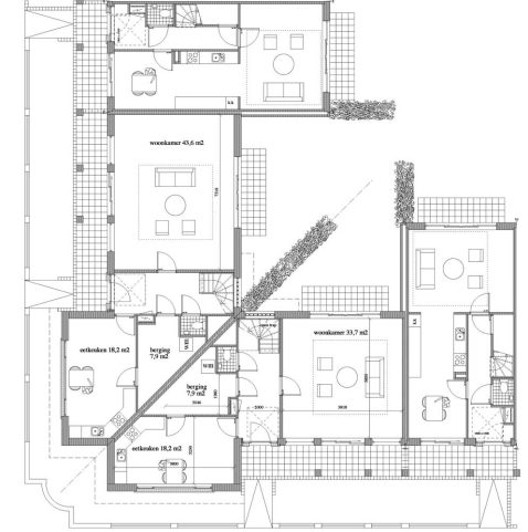
In een 70-er jaren uitbreidingswijk komt een locatie vrij. Een woningbouwplan is ontworpen ten behoeve van een meervoudige opdracht. De woningen sluiten stilistisch aan op de Nieuwe Haagsche School, de architectuur van Wils en Brandes die in de 20er en 30er jaren een combinatie van burgerlijk wooncomfort en moderne architectuur bood. Donkergroene kozijnen, oranjerode handvormsteen en het karakteristieke voegwerk horen hierbij.
Het plan heeft verandaas aan de straat: de eetkamer heeft hierdoor een beschutte uitloop in de zon. Een karakteristiek dubbel hoekhuis markeert de zijstraat. Ter plaatse van de entree naar het achtererf is een kopwoning met ronde uitbouw voorgesteld. Parkeren op het achtererf gebeurt naar keuze van de bewoners in carports, garages of een achterhuis.
Het project werd in de winter van 2005 opgeleverd.
Legenda
- ontwerp: SCALA Mieke Bosse, Peter Drijver, Martijn Ebberink, Edward Jenner, Petra Zwart, 2002
- opdrachtgever: NCB Harderwijk























